




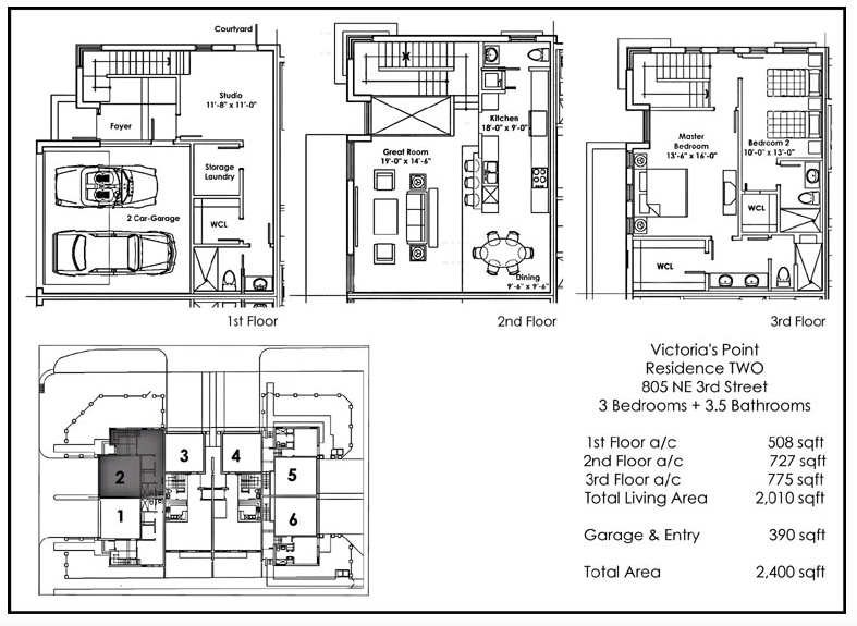
Modern design in a townhouse provides the amenities of a brand new home mixed with the scenery and ambiance of a summer beach home. Conveniently located in premium Fort Lauderdale real state, it is perfect for the younger family. From 1500 SQF to 2500 sq ft 3 Bedrooms 2 1/2 Bathrooms 6 Units
Click and will be happy to attend.